Nakon tri i pol godišnje stanke u Supetru su ponovno započeli radovi na izgradnji školske športske dvorane koja se nalazi u neposrednoj blizini Srednje škole. Ta vijest posebno će obradovati učenike i mladež tog bračkog gradskog središta jer je pravi kuriozitet da u Supetru, koji bilježi pozitivne demografske procese, nema niti centimetra zatvorenog prostora za športske aktivnosti.
Istodobno u klupama Osnovne škole sjedi 268 učenika dok Srednju školu pohađa 148 učenika, a kroz sportske i kulturne udruge djeluje još 300 članova, mahom mladeži.
U posebnoj su teškoj situaciji osnovci i srednjoškolci jer izvođenje nastave tjelesnog odgoja, osobito u zimskom razdoblju i za lošeg vremena, postaje upitno te se odvija s mnogo improvizacije.
"Gradnja dvorane je bila obustavljena prije njegova dolaska na dužnost, pojasnio je supetarski gradonačelnik Dinko Hržić, zbog brojnih problema i uočenih manjkavosti pa je došlo i do izmjene glavnog projekta (u međuvremenu su sve prepreke uklonjene, a sam prostor je racionalnije iskorišten").
Zatečeni stanjem na projektu Školske sportske dvorane bili smo prisliljeni napraviti potrebite izmjene glavnog projekta jer smo sudskim vještvom i detaljnijom analizom novoangažiranih arhitekata riješili mnoge nedostatke koje je predmetna dvorana imala budući bez izmjena dvorani je bila priječena uporabna dozvola, a te izmjene su:
- krovište dvorane (protupožarni uvjeti, atesti),
- fasada (statika i izdržljivost tereta fasade od kamena),
- sve instalacije (gdje nije bilo niti kvalitetno riješenog grijanja i hlađenja, iste su riješene projektom automatskog sustava grijanja i hlađenja sa solarnim napajanjem),
- također je razriješen i manji dio imovinsko pravnih odnosa koji su se morali na samome početku projekta riješiti ( no to je za rezultat iziskivalo i izbacivanje vanjskog igrališta za male sportove van projekta, izmjenjeni dio je prenamjenjen za prakiralište i vatrogasni ulaz)
- dodatno je uljepšan i vanjski izgled dvorane kako bi se ista se na kraju uklopila u sam okoliš
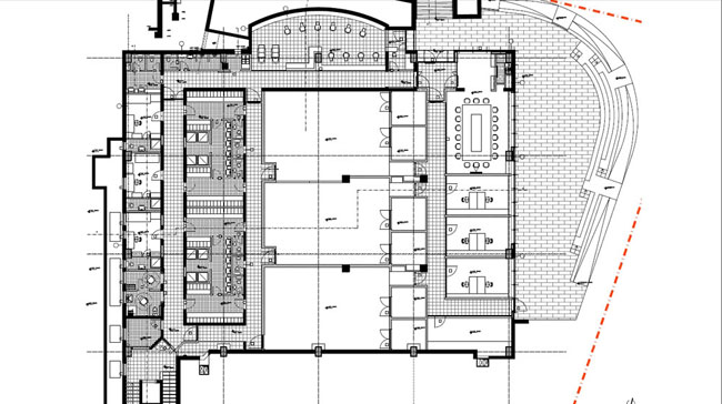
Školsko- sportsko dvorana prostirat će se na površini od 2035 metara četvornih, a osim osnovcima i srednjoškolcima bit će namijenjena za ostale sportsko-rekreacijske i kulturne potrebe Supetra.
Novina u projektu je suteren tzv. „podrum“ dvorane koji u prvotnom projektu nije bio obuhvaćen detaljnije već samo u roh-bau sistemu, u suterenu dvorane u kojem će biti smještene tri veće dvorane, svaka će imati površinu od 101 metar četvorni, te 4 ureda za sportske udruge te dvorana za sastanke površine 55 metara četvornih. Tu će još biti svlačionice, garderobe, frizerski salon za potrebe Srednje škole, sanitarni čvorovi i dizalo za invalide.
Prostori će biti korišteni za razne sportske i druge aktivnosti poput (aerobik, pilates, joga, ples, teretana-fitness, borilačke vještine i mnoge druge dvoranske aktivnosti)
- četiri ureda za udruge svaka po 20 m2, te salu za sastanke površine 55 m2 sa čajnom kuhinjom
- frizerski salon površine 63 m2 isprojektiran za potrebe Srednje škole Brač

Centralni dio Školske sportske dvorane koristi će se u svrhe učenika Srednje škole Brač i ostale udruge te van školske aktivnosti, dimenzije igrališta biti će 33m dug i 20 m širine, sa 300 sjedećih mjesta sa pripadajućim sanitarnim čvorovima i garderobom.
Za potrebe izgradnje dvorane grad Supetar je, usprkos teškoj financijskoj situaciji zbog višemilijunskih ovrha, uspio osigurati 6,6 milijuna kuna, Županija splitsko-dalmatinska 2,5 milijuna dok će Ministarstvo regionalnog razvoja i EU fondova izdvojiti 5,6 milijuna kuna.
„Činimo sve da konačno riješimo gorući problem u našemu gradu jer nedostatak školsko-sportske dvorane stvara mnoge probleme. Učenici su neopravdano zakinuti u tjelesnom odgoju dok je supetarska mladež uskraćena u športskim aktivnostima“- pojasnio je gradonačelnik Hržić .
Radove izvodi poduzeće „ MP Beton“ iz Solina, a očekuje se kako će dvorana biti predana na uporabu u prvom tromjesečju iduće godine.














